电线电缆网 > 挤塑 挤橡 发泡 > 2.各位前辈们,谁能告诉我如何设计轧辊模具,例如考虑VV 3*120+2*70 L、R、β、H、(完整版)
2.各位前辈们,谁能告诉我如何设计轧辊模具,例如考虑VV 3*120+2*70 L、R、β、H、 - 无图版
327614599 --- 2009-12-15 20:00:46
1
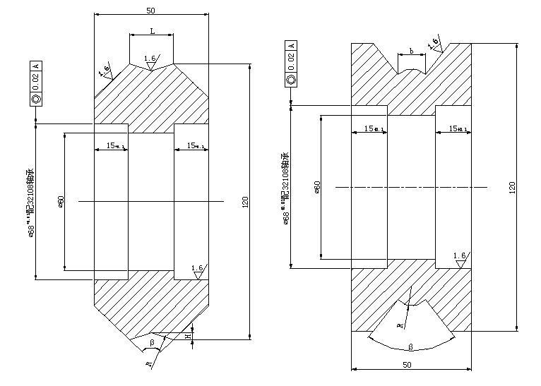
下面是图纸,谢谢了啊

sbb --- 2009-12-16 22:51:13
2
下了无法打开,扣了钱了.能发一个dwg文件我吗ab8208@21cn.com
jingwz --- 2009-12-23 16:50:49
3
可以自己设计电子表格,用牛顿迭代法进行计算。
雨后阳光 --- 2009-12-28 23:25:01
4
兄弟,麻烦你上传图片的时候能不能考别人的网络速度啊,这么大的BMP格式图片也不处理成JPG格式,你让别人好等啊。
你这个是CAD图啊,先模拟最理想的3+2结构图啊,画图的时候有重叠面域啊,用CAD来微调啊。那个B角度可以按你最小的成缆外径来做假设调整,多画几次,就OK了。具体的方法还真不好说明白好像,反正就是你多模拟几次理想的3+2截面图就有灵感了